Description
- A chain free semi-detached home in an elevated position
- Parking
- Situated over three floors
- Handsome red brick home bursting with character and charm
- Must be viewed to be appreciated
- Three bedrooms
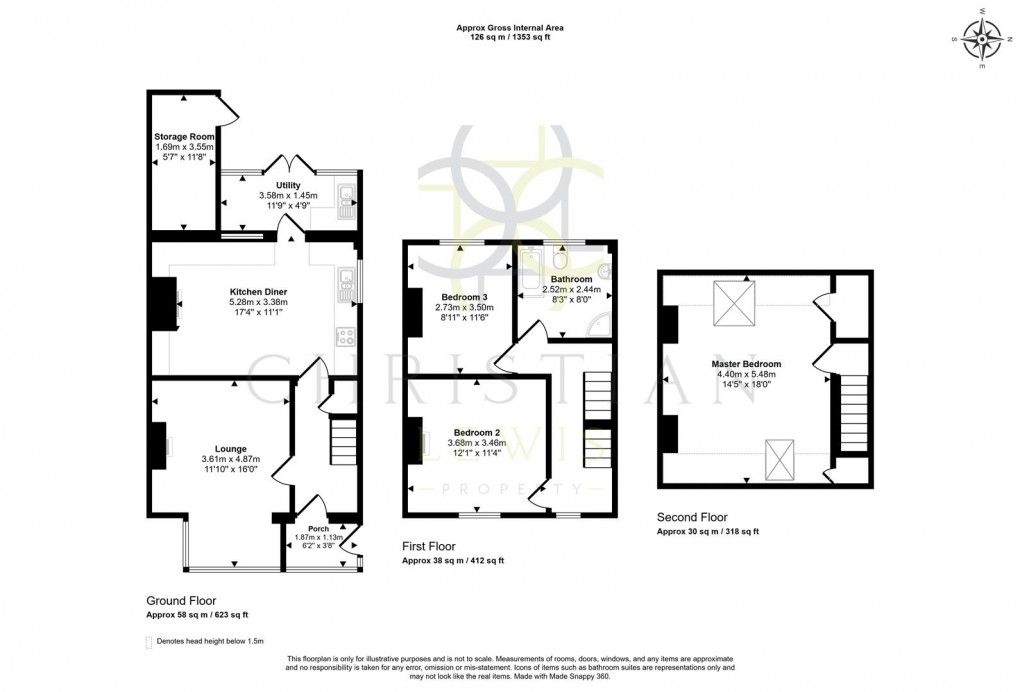
A HANDSOME PERIOD PROPERTY SITUATED IN AN ELEVATED POSITION Offered to the market with no onward chain, this delightful home presents an excellent opportunity for buyers seeking a property with both character and potential to personalise. Lovingly owned and carefully maintained over many years, the property exudes a warm and welcoming feel throughout and truly needs to be viewed in person to be fully appreciated. Arranged over three floors, the accommodation is rich in charm and offers a versatile layout. The ground floor comprises an inviting porch leading into a cosy lounge, along with a spacious kitchen/diner ideal for everyday living and entertaining, complemented by a practical utility area. To the first floor, there are two well-proportioned bedrooms and a family bathroom. The second floor hosts a further generous double bedroom, providing additional flexibility for use as a principal suite, guest room, or home office. Externally, the property benefits from a driveway providing off-road parking, a front garden enhancing kerb appeal, and an enclosed rear garden offering a private outdoor space to enjoy. Overall, this is a wonderful opportunity to acquire a charming home with scope to modernise and make your own.
Additional Information
Tenure: We understand that the property for sale is Freehold
Local Authority: Wychavon District Council
Council Tax Band: We understand that the Council Tax Band for the property is Band C
EPC Rating D
DISCLAIMER
Whilst we make enquiries with the Seller to ensure the information provided is accurate, Christian Lewis makes no representations or warranties of any kind with respect to the statements contained in the particulars which should not be relied upon as representations of fact. All representations contained in the particulars are based on details supplied by the Seller.
Your Conveyancer is legally responsible for ensuring any purchase agreement fully protects your position.
Please inform us if you become aware of any information being inaccurate.
Floorplan
EPC
To discuss this property call us:
Market your property
with Christian Lewis Property
Book a market appraisal for your property today. Our virtual options are still available if you prefer.
