Description
- An immaculately presented four bedroom townhouse
- Parking plus garage
- South facing rear garden
- Show home condition
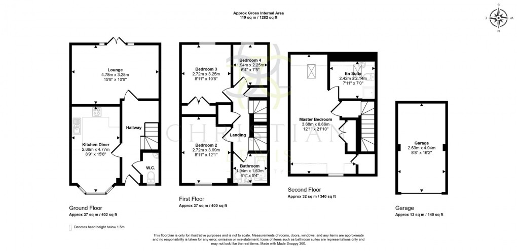
A stunning and contemporary three-storey family home that offers exceptional value, combining modern design with spacious and well-planned living areas. Spread across three thoughtfully designed floors, this impressive home boasts a generous master suite on the top floor, featuring fitted wardrobes, a dedicated dressing area, and a private en-suite shower room—creating the perfect retreat for relaxation. Upon entering the property, you are welcomed by a central entrance hall. To the right, the well-appointed kitchen and dining area offer a bright and inviting space, complete with a range of modern wall and base units, ample worktop space, and a charming feature bay window that enhances the natural light. A convenient W/C is also located off the hallway. At the rear of the property, the spacious sitting room provides a comfortable and elegant living space, with large glazed doors that open onto the enclosed rear garden—ideal for seamless indoor-outdoor living. The first floor accommodates three generously sized double bedrooms, all designed for comfort and versatility, alongside a sleek and modern family bathroom. The master suite is exclusively positioned on the second floor, ensuring privacy and luxury. Externally, the enclosed south facing rear garden is predominantly laid to lawn, complemented by a designated patio area, perfect for outdoor entertaining and al-fresco dining. A side gate provides easy access to the garage and private driveway, which comfortably accommodates parking for two vehicles. This exceptional home seamlessly blends style, practicality, and modern living, making it an ideal choice for families and professionals alike.
Additional Information
Tenure: We understand that the property is for sale Freehold.
Local Authority: Wychavon District Council
Council Tax Band: We understand that the Council Tax Band for the property is Band D
EPC Rating: C
Estate charges apply
DISCLAIMER
Whilst we make enquiries with the Seller to ensure the information provided is accurate, Christian Lewis makes no representations or warranties of any kind with respect to the statements contained in the particulars which should not be relied upon as representations of fact. All representations contained in the particulars are based on details supplied by the Seller. Your Conveyancer is legally responsible for ensuring any purchase agreement fully protects your position. Please inform us if you become aware of any information being inaccurate.
Floorplan
EPC
To discuss this property call us:
Market your property
with Christian Lewis Property
Book a market appraisal for your property today. Our virtual options are still available if you prefer.
